A 30 minutos de Montpellier, propriedade de caráter recentemente renovada e seu parque arborizado, com anexo, garagem, piscina e oficina
Características principais da casa / vila
- Terraço
- Jardim
- Garagem privad
- Tectos altos
- Parquet
- Luz natural
- Características da época
- Radiadores para pavimento
- Estacionamento
- Varanda
- Sistema de alarme
- Renovado
- Lavandaria
- Janelas de vidro duplo
- Entrada de serviço
- Despensa
- Cozinha equipada
- Churrasco
- Chaminé
- Armários embutidos
- Ar condicionado
- Plano 315m²
- Superfície construída 426m²
O que deve saber sobre esta casa / vila
Exclusiva da Lucas Fox International Properties, em uma vila encantadora a 30 minutos de Montpellier e a 8 minutos da autoestrada, uma propriedade única com parque privativo.
Inspirada nas fazendas, a casa foi construída há cerca de trinta anos pelo antigo proprietário em torno de um antigo pavilhão de caça. O trabalho artesanal é particularmente refinado; diversos mestres artesãos aplicaram sua perícia em pedra, madeira e ferro.
Recentemente modernizada, agora desfruta de todo o conforto moderno: ar condicionado central nos quartos, aquecimento/resfriamento de piso nas áreas sociais, janelas panorâmicas que oferecem vista para o jardim; construção de piscina, anexo, garagem dupla, duas entradas, revitalização do parque e muito mais.
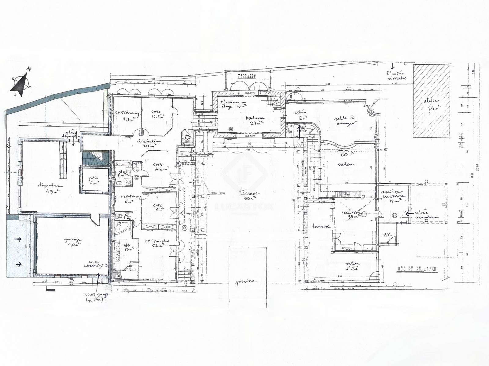
Distribuída inteiramente em um único piso, a casa compreende: um hall de entrada, uma sala de estar e jantar com pé-direito duplo e vigas aparentes, uma adega, um escritório, uma cozinha com copa e despensa, e uma lavanderia. A área íntima, mais elegante, inclui cinco quartos, sendo um deles uma suíte master com banheiro duplo.
Diversos espaços complementam este conjunto: um anexo com pátio, uma oficina de pedra (também independente, ideal para um consultório profissional ou outro uso), uma garagem dupla e uma ampla área de armazenamento (ideal para uma adega). A propriedade beneficia de janelas em todos os quatro lados, com todos os cômodos se abrindo para passarelas e terraços. Uma sala de estar de verão fica ao lado da cozinha, com acesso direto à piscina.
O terraço principal conecta a maioria dos cômodos da propriedade e, em certas épocas do ano, transforma-se em um verdadeiro espaço de convivência ao ar livre. A piscina se integra perfeitamente ao terraço e oferece uma vista encantadora da vegetação exuberante do parque. Os pinheiros altos, as oliveiras e a vegetação mediterrânea proporcionam uma sombra agradável e uma atmosfera intimista, ainda mais valorizada pela fonte.
Para obter mais informações, entre em contato com seu agente dedicado, Alexander Deans, Diretor de Vendas.
Plantas e fotos adicionais estão disponíveis em nosso site. Informações sobre os riscos a que este imóvel está exposto podem ser encontradas no site da Géorisques: www.georisques.gouv.fr.
Aquisições exclusivas
Propriedade disponível só na Lucas Fox
Certificado de eficiência energética do edifício
Energy Certificate : In process
- 2
- 3
- 4
- 5
- 6
- 7
- 8
- 9
- 10
- 11
- 12
- 13
- 14
- 15
- 16
- 17
- 18
- 19
- 20
- 21
- 22
- 23
- 24
- 25
- 26
- 27
- 28
- 29
- 30
- 31
- 32
- 33
- 34
- 35
- 36
- 37
- 38
- 39
- 40
- 41
- 42
- 43
- 44
- 45
- 46
- 47
- 48
- 49
- 50
- 51
- 52
- 53
- 54
- 55
- 56
- 57
- 58
- 59
Imóveis similares Montpellier Region
Não é exactamente o que procura?

































































































