Fantástico apartamento para venda, para renovar, com três quartos e garagem, no mesmo prédio em El Viso, Madrid.
Características principais do apartamento
- Terraço
- Jardim
- Serviços de portaria
- Garagem privad
- Elevador
- Luz natural
- Estacionamento
- Edifício modernista
- Segurança
- Sala de jogos
- Próximo de escolas internacionais
- Perto de transporte público
- Parque infantil
- Lavandaria
- Janelas de vidro duplo
- Exterior
- Elevador de serviço
- Despensa
- Armários embutidos
- Àrea chill out
- Ar condicionado
- Aquecimento
- Acesso habilitado para cadeira de rodas
- A renovar
- Plano 245m²
- Superfície construída 245m²
- Área comum 245m²
O que deve saber sobre este apartamento
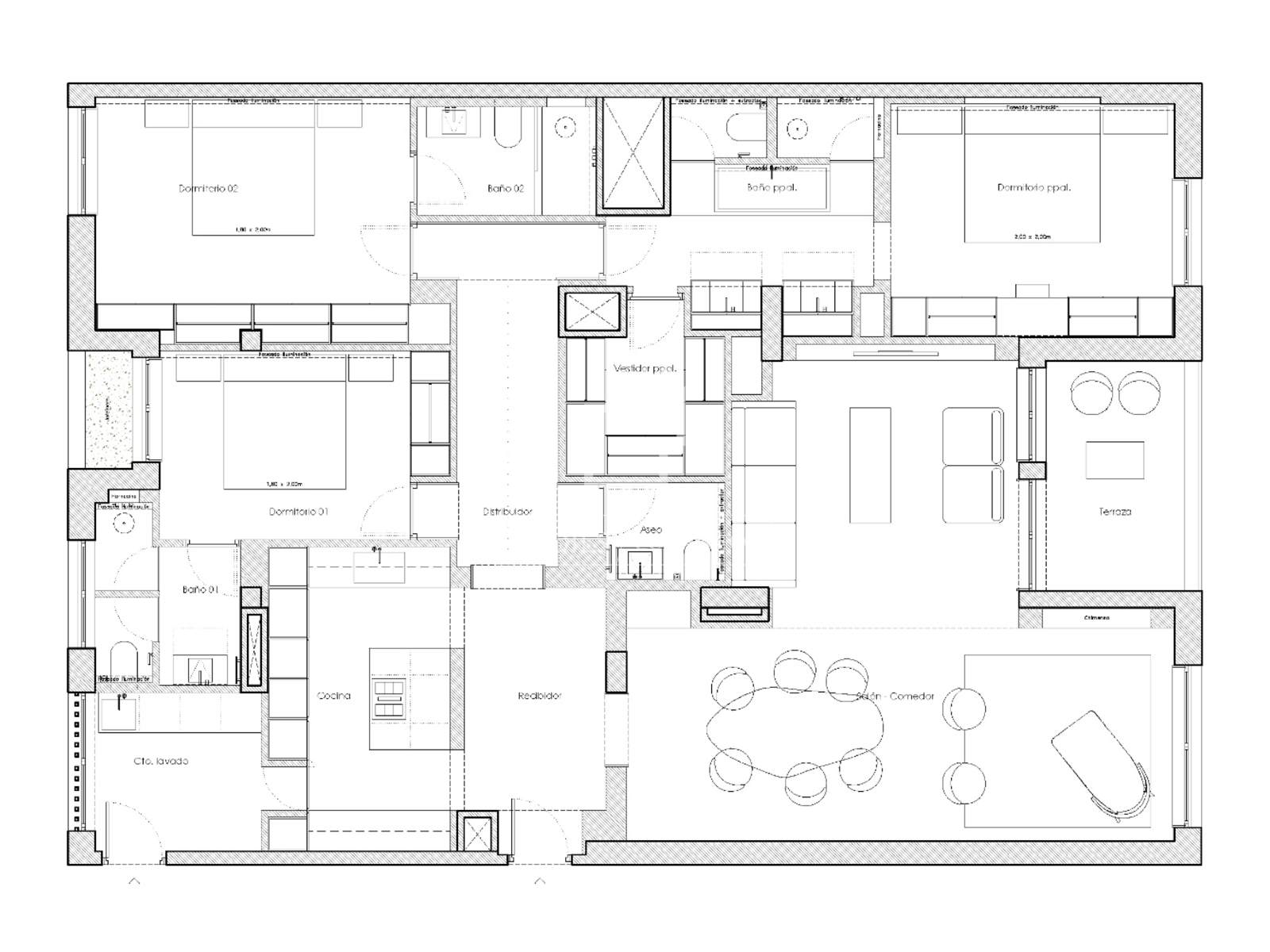
Apresentamos este imóvel excepcional para renovação, uma oportunidade única para criar uma casa personalizada numa das localizações mais exclusivas de Madrid. Atualmente completamente demolido, oferece-se como uma verdadeira tela em branco onde cada detalhe pode ser projetado ao gosto do futuro proprietário. O atual proprietário oferece um projeto de renovação totalmente opcional e personalizável, cujas imagens ilustram o enorme potencial deste imóvel.
Este luminoso apartamento, totalmente exterior, beneficia de abundante luz natural ao longo do dia e dispõe de um encantador terraço que amplia a sensação de espaço e conexão com o ambiente externo. Sua versatilidade permite configurações com três ou quatro quartos, adaptando-se facilmente a diferentes estilos de vida, seja com um escritório, área de estudos ou acomodações para hóspedes. O imóvel também inclui uma vaga de garagem no prédio, depósito, serviço de concierge e acesso a jardins bem cuidados e área de lazer infantil, proporcionando um valor agregado excepcional.
Localizada em El Viso, uma das áreas residenciais mais desejadas, seguras e discretas de Madrid, esta propriedade combina a tranquilidade de um bairro consolidado com excelentes ligações às principais zonas comerciais e de serviços da cidade. Rodeada por escolas internacionais, espaços verdes e uma gama completa de comodidades de luxo, garante uma qualidade de vida excepcional tanto para famílias como para profissionais.
A escassez de imóveis deste tipo na zona, aliada à forte valorização histórica de El Viso, torna esta propriedade um investimento de elevado potencial, ideal tanto como residência principal como para rentabilidade a médio e longo prazo. Um imóvel único para quem procura exclusividade, personalização e um investimento seguro no coração de Madrid.
Em conformidade com as obrigações de informação previstas na Lei 10/2025 sobre Atendimento ao Cliente e Transparência, informa-se que as despesas notariais e de registo, bem como o Imposto sobre Transmissões Patrimoniais (ITP) da comunidade autónoma onde o imóvel se situa, não estão incluídas no preço.
Extras
- Fora do país
- Elevador duplo
- Vaga de estacionamento no prédio
- Aquecimento central
- Área infantil
- Sala de armazenamento
- Para renovar
Distribuição do apartamento
- Para renovar
- Três quartos
- Quatro banheiros
- Terraço
El Viso, Madrid: Localização deste imóvel
Localizado no bairro de Chamartín, El Viso é uma das áreas residenciais mais exclusivas, discretas e desejadas de Madri. Originalmente concebido como um conjunto de casas unifamiliares na década de 1930, este bairro preservou seu caráter tranquilo e elegante, tornando-se um verdadeiro refúgio dentro da cidade. Suas ruas arborizadas e pouco movimentadas, com tráfego mínimo, oferecem uma atmosfera serena e privativa raramente encontrada nos centros urbanos.
El Viso destaca-se pela sua arquitetura singular, onde moradias isoladas, edifícios baixos e propriedades de alto padrão coexistem, muitas com terraços, jardins ou grandes janelas. Este ambiente residencial bem conservado e seguro torna-o uma opção particularmente atraente para famílias, executivos e profissionais internacionais que valorizam a privacidade sem sacrificar a proximidade com a atmosfera vibrante da cidade.
Sua localização estratégica é um de seus maiores trunfos: a poucos minutos do distrito financeiro AZCA, do Paseo de la Castellana e do bairro de Salamanca, proporciona acesso rápido às principais áreas comerciais, gastronômicas e de lazer da capital. Além disso, possui excelentes conexões de transporte, tanto particular quanto público.
A área é cercada por algumas das escolas internacionais e centros educacionais mais prestigiados de Madri, além de hospitais de referência, instalações esportivas e uma seleção criteriosa de serviços de alto padrão. Soma-se a isso a proximidade com extensas áreas verdes e espaços abertos, que contribuem para a sensação de bem-estar e qualidade de vida.
A oferta limitada de imóveis e a demanda constante consolidam El Viso como uma das áreas com maior estabilidade e potencial de valorização na cidade. Um enclave único onde exclusividade, tranquilidade e localização privilegiada se combinam para oferecer um estilo de vida incomparável.
Certificado de eficiência energética do edifício
Energy consumption F : 299kWh/m²/year
Emissions E : 63kg CO₂/m²/year
Imóveis similares Madrid City
Não é exactamente o que procura?













































































































































































































