Fantástica casa de design com todos os cômodos externos, dois quartos, dois banheiros completos e um terraço espaçoso. Localização privilegiada, próxima a lojas, restaurantes e transporte público.
Características principais da casa / vila
- Terraço
- Jacuzzi
- Luz natural
- Vistas da cidade
- Varanda
- Sistema domótico
- Renovado
- Perto de transporte público
- Janelas de vidro duplo
- Exterior
- Cozinha equipada
- Cozinha aberta
- Churrasco
- Ar condicionado
- Plano 92m²
O que deve saber sobre esta casa / vila
Situada numa das ruas mais procuradas do centro histórico de Cornellà de Llobregat, esta propriedade representa uma intervenção abrangente num edifício original de 1930, cuja fachada foi preservada de acordo com os critérios de conservação do património.
O edifício foi completamente reconstruído em 2023, preservando-se apenas os elementos estruturais essenciais. O resultado é uma residência contemporânea que integra soluções arquitetônicas modernas com características originais restauradas. O projeto, desenvolvido pela UMA Projectes, baseia-se em um conceito onde funcionalidade, eficiência e coerência estética são os principais princípios.
O acesso é feito por um hall com pé-direito de aproximadamente cinco metros, o que permite a entrada de luz natural através de claraboias no teto e melhora a percepção espacial do conjunto.
A escadaria principal, com seu design em balanço e construção feita sob medida, funciona como um elemento estrutural e de conexão vertical, otimizando o espaço e proporcionando leveza visual.
A abóbada catalã original foi restaurada e, além disso, foi incorporada iluminação indireta em LED para realçar sua geometria e proporcionar continuidade com a linguagem arquitetônica atual.
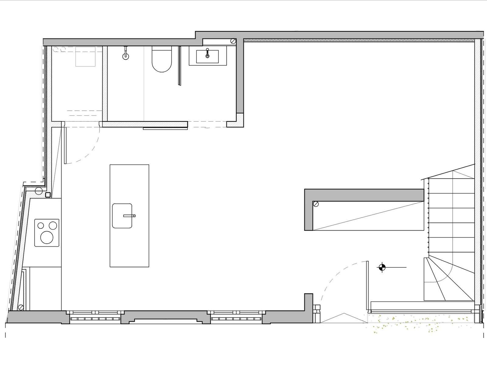
A casa possui uma área construída de 111 m², organizada segundo um conceito de planta aberta que prioriza a luz natural e a sensação de amplitude.
A área social principal, com mais de 40 metros quadrados, integra harmoniosamente a sala de estar, a sala de jantar e a cozinha em um único espaço contínuo. A cozinha conta com uma ilha central com bancada em Silestone e soluções de armazenamento integradas, como uma despensa oculta, maximizando a funcionalidade sem comprometer a estética geral.
O imóvel conta com dois quartos projetados para garantir conforto acústico e de iluminação, além de dois banheiros completos com acabamentos contemporâneos e materiais altamente duráveis.
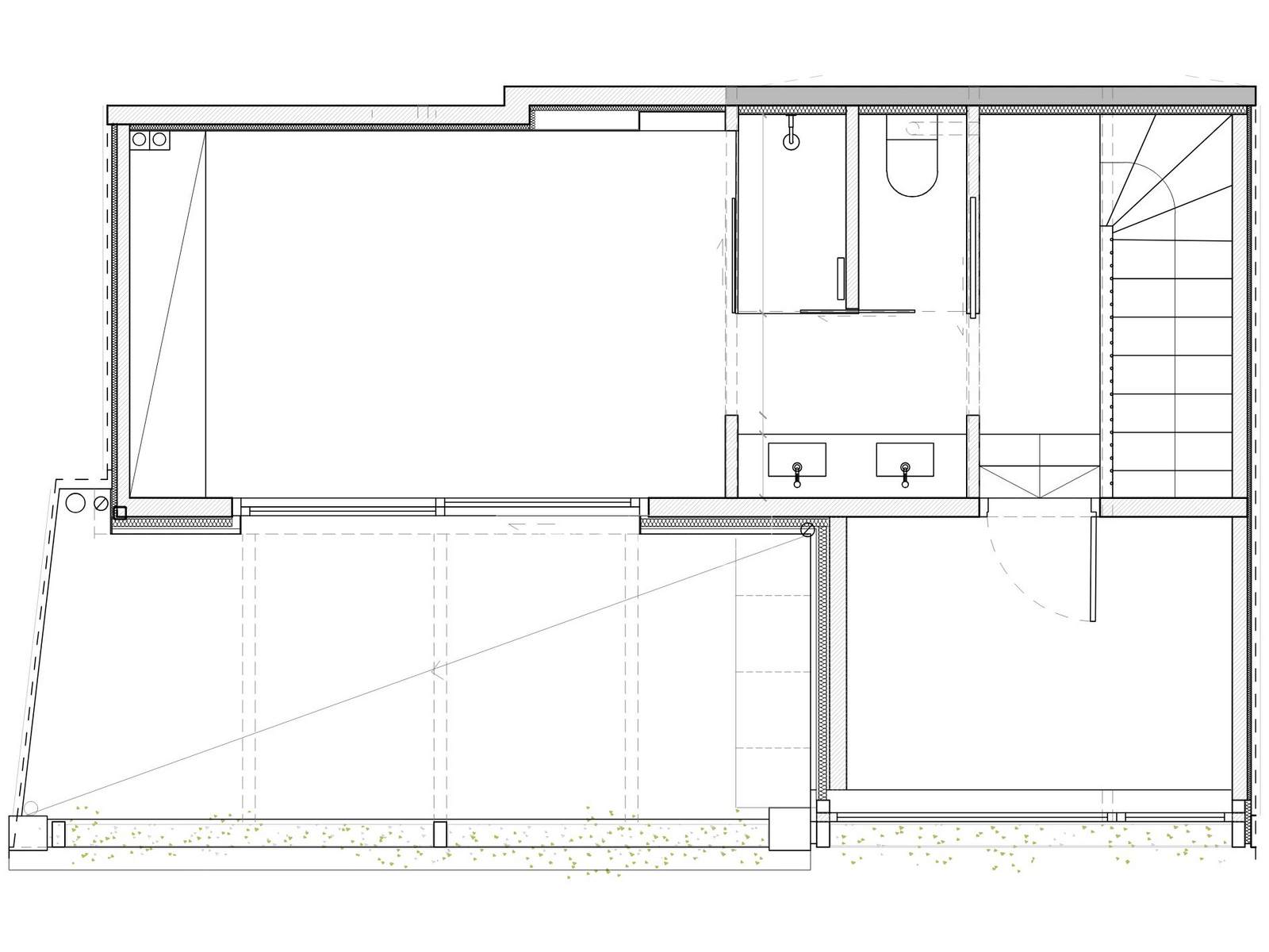
Foram incorporados mezaninos utilizáveis de aproximadamente 12 m² e 5 m², que ampliam a área útil e permitem usos multifuncionais.
A casa possui um sistema completo de automação residencial que permite o controle de iluminação, climatização, persianas e sistemas de segurança por meio de dispositivos móveis.
O sistema audiovisual foi projetado para garantir uma solução discreta e funcional.
Possui também um sistema de amaciamento de água, que contribui para um melhor desempenho das instalações e para a sua manutenção a longo prazo.
A intervenção incluiu uma reconstrução completa do edifício, onde destacamos os seguintes aspectos:
- Implementação de nova estrutura
- Placas feitas inteiramente
- Renovação completa das instalações elétricas e hidráulicas.
- Incorporação de isolamento térmico e acústico de alto desempenho
- Esquadrias externas de alto desempenho
- Sistema integrado de controle climático
O resultado é uma casa que atende aos padrões atuais de eficiência e conforto, com uma classificação energética C.
Na parte externa, a propriedade conta com um terraço privativo de aproximadamente 16 m², projetado como uma extensão funcional do espaço interno. Inclui deck de bambu natural, área de cozinha externa, jacuzzi, espaço para armazenamento e lavanderia integrada.
É a opção perfeita para quem busca uma casa espaçosa e funcional em uma localização estratégica. Entre em contato conosco para agendar uma visita a este imóvel excepcional.
Distribuição da casa / vila
Piso principal:
- Distribuidor de salão
- Sala de estar/jantar
- Cozinha /escritório em plano aberto
- Um banheiro completo
- Guarda-roupas
- Despensa
Primeiro andar:
- Salão de Distribuição
- Um quarto
- Uma suíte master com banheiro completo dentro
Terraço com piso de madeira, jacuzzi , cozinha integrada e lavanderia.
Esplugues de Llobregat, Barcelona: Localização deste imóvel
Situada numa rua tranquila, quase pedonal, no centro histórico de Cornellà de Llobregat, a propriedade beneficia de um ambiente residencial pitoresco, caracterizado por casas e uma elevada qualidade de vida. Todos os serviços essenciais, como o mercado local, lojas e restaurantes, encontram-se a poucos passos de distância. A conectividade é excelente.
- FGC a 150 metros
- Metrô, TramBaix e Renfe a menos de 500 metros
- Acesso rápido a Barcelona
- O acesso ao aeroporto de Barcelona fica a apenas 10 minutos de distância.
Uma localização que lhe permite desfrutar de paz e tranquilidade sem sacrificar a proximidade de uma grande cidade internacional.
Certificado de eficiência energética do edifício
Energy consumption C : 96kWh/m²/year
Emissions C : 18kg CO₂/m²/year
Imóveis similares Esplugues de Llobregat
Não é exactamente o que procura?













































































































































































































































