Imóvel exclusivo de esquina para renovar, com 3 quartos, em Ríos Rosas, Chamberí, Madrid.
Características principais do apartamento
- Elevador
- Tectos altos
- Luz natural
- Edificio da época
- Varanda
- Próximo de escolas internacionais
- Perto de transporte público
- Exterior
- Despensa
- Aquecimento
- Acesso habilitado para cadeira de rodas
- A renovar
- Plano 167m²
- Superfície construída 167m²
- Superfície útil 152m²
- Área comum 167m²
O que deve saber sobre este apartamento
Situada a poucos passos da Plaza de San Juan de la Cruz, do Paseo de la Castellana, do Museu de Ciências Naturais e da Escola de Engenheiros Industriais, esta propriedade de 167 m² apresenta-se como uma verdadeira tela em branco, oferecendo a possibilidade de projetar a sua casa à medida.
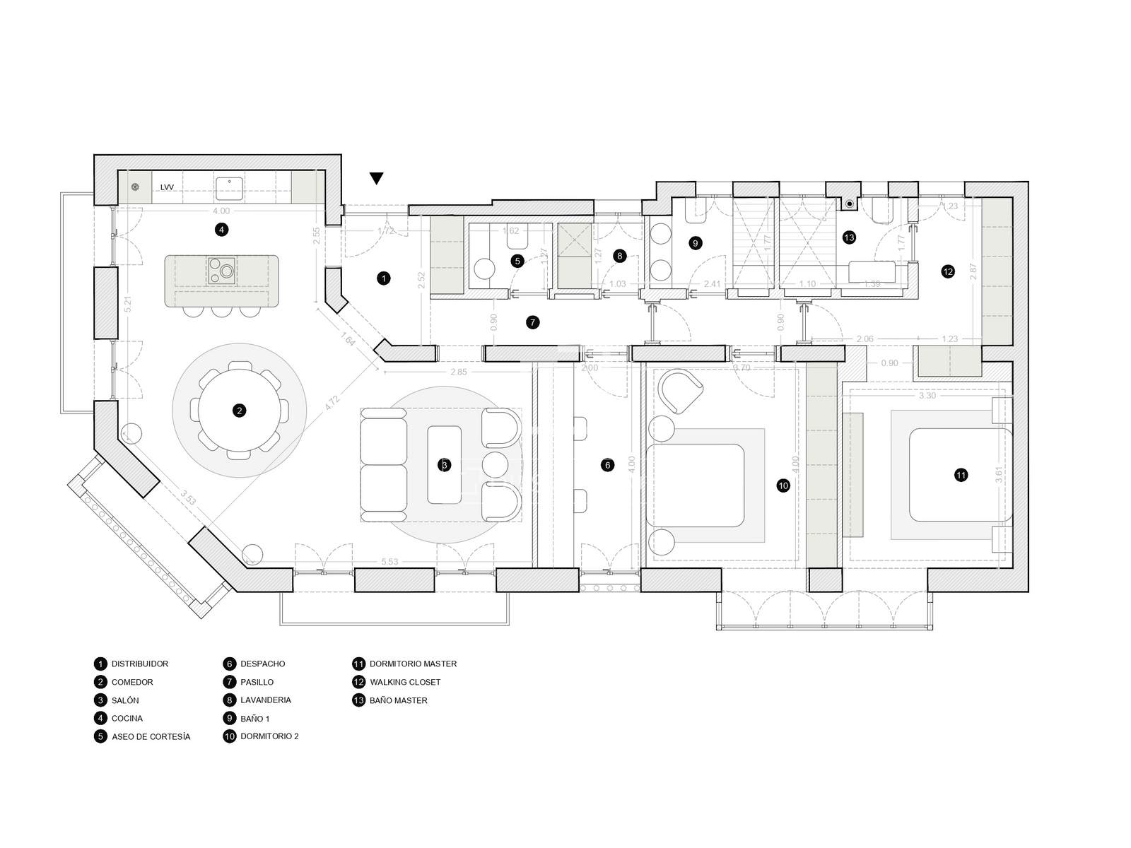
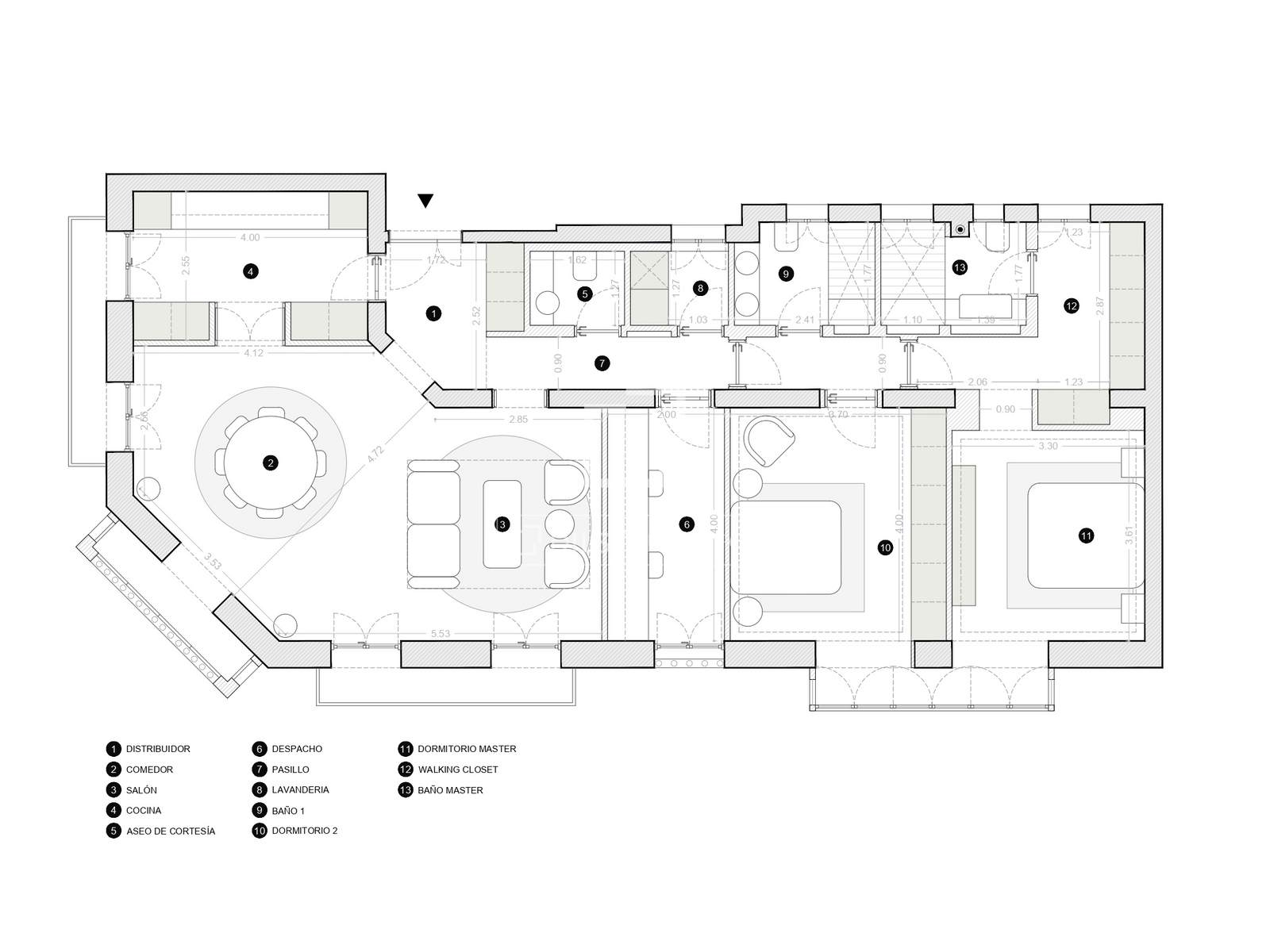
Localizado em um edifício clássico e imponente, este apartamento possui apenas dois vizinhos por andar, garantindo privacidade e tranquilidade. Os tetos com três metros de altura e as oito varandas voltadas para o oeste proporcionam abundante luz natural e uma sensação de amplitude, valorizando cada cômodo. As imagens atuais mostram uma proposta de reforma com três quartos e três banheiros, totalmente personalizável e com opções para atender às suas necessidades e estilo.
O edifício, com seu estilo clássico e elegante, destaca-se pela entrada imponente, pelos vitrais na escadaria e pela esquina chanfrada que lhe confere personalidade e distinção. Varandas e janelas em arco com balaustradas de pedra inundam o apartamento de luz e realçam seu charme histórico. O elevador de madeira clássico complementa a atmosfera majestosa e exclusiva do imóvel.
O terraço comunitário na cobertura, mobiliado com espreguiçadeiras e vegetação, oferece um espaço relaxante com vistas excepcionais de Chamberí. A área, um bairro residencial consolidado e tranquilo, alia segurança e qualidade de vida, representando uma oportunidade única para quem busca exclusividade e um investimento imobiliário rentável em Madrid.
Localizado no coração de Chamberí, uma das áreas mais prestigiadas e em constante valorização da cidade, o imóvel oferece excelente conectividade por metrô e ônibus, proximidade a lojas, restaurantes, espaços culturais, universidades e escritórios, garantindo conforto para morar e alta demanda para locação.
Extras
- Terceiro andar
- Elevador
- Fora do país
- 8 varandas com vista para a rua
- Escorregar
- Aquecimento central
- Edifício clássico
- Para ser reformado
- voltado para o oeste
- Sala de armazenamento
Distribuição do apartamento
- Saguão
- Sala de jantar
- Cozinha
- 3 quartos
- 3 banheiros
Ríos Rosas, Madrid: Localização deste imóvel
Ríos Rosas, no coração de Chamberí, é um bairro residencial consolidado que combina história, elegância e vida urbana. Suas ruas arborizadas e tranquilas abrigam mansões clássicas e edifícios imponentes, oferecendo um ambiente seguro e exclusivo, muito procurado por famílias, profissionais e expatriados.
A área possui uma localização estratégica: a poucos minutos do Paseo de la Castellana, com acesso rápido ao centro de Madrid e às principais vias da cidade, além de excelente conectividade através de diversas linhas de metrô e ônibus.
Ríos Rosas se destaca por sua oferta educacional de alto nível, incluindo escolas internacionais como o Liceu Italiano, além de outras instituições renomadas que atraem famílias que buscam educação bilíngue ou internacional para seus filhos.
Para os amantes da cultura e da ciência, a área está rodeada de museus emblemáticos, como o Museu Geomineral, o Museu de Ciências Naturais e outros espaços culturais em Chamberí, que enriquecem o quotidiano e oferecem programas de lazer para todas as idades.
O bairro também oferece espaços verdes e áreas de lazer, ideais para caminhadas, esportes ou momentos em família. Parques próximos, como o Parque Santander, e jardins urbanos proporcionam calma e tranquilidade dentro da cidade, mantendo o equilíbrio perfeito entre a vida urbana e a serenidade residencial.
Ríos Rosas combina lojas locais, restaurantes sofisticados, cafés e boutiques, oferecendo tudo o que é necessário para um estilo de vida confortável e refinado. Essa mistura de história, serviços, educação e conectividade faz de Ríos Rosas uma das áreas mais exclusivas e de valorização mais rápida de Madri, perfeita tanto para morar quanto para investir em imóveis de alta demanda.
Certificado de eficiência energética do edifício
Energy consumption E : 262kWh/m²/year
Emissions E : 54kg CO₂/m²/year
Imóveis similares Madrid City
Não é exactamente o que procura?



















































































































































































































